产品展示 当前位置:网站首页 > 产品展示
首页   /   产品展示   /   搪玻璃列管式冷凝器
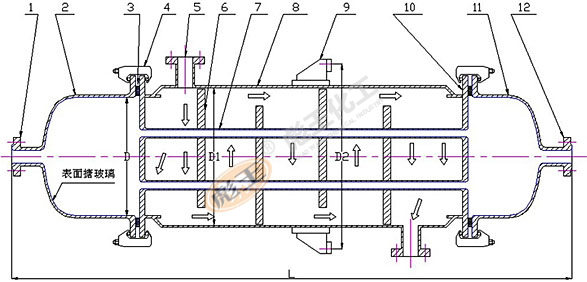
搪玻璃列管式冷凝器




(1)、(12)  物料进出口 (2)、(11)  封头 (3)  垫圈
(4)  卡子 (5)  冷却/加温液进出口 (6)  折流板
(7)  换热管 (8)  罐体 (9)  耳座(支座)
(10)  管板

搪玻璃列管式换热器面积数据表

换热面积 ㎡ D 换热管Pipe 换热器Exchanger
L1 数量
Quantity
规格
Specification
D1 D2 L
5 Ф400 1500 19 Ф38x4 Ф500 Ф610 2100
8 Ф500 1500 37 Ф38x4 Ф600 Ф712 2150
10 Ф400 3000 19 Ф38x4 Ф500 Ф610 3600
Ф600 1500 55 Ф38x4 Ф700 Ф832 2200
15 Ф500 3000 37 Ф38x4 Ф600 Ф712 3650
Ф700 1500 83 Ф38x4 Ф800 Ф947 2300
20 Ф600 3000 55 Ф38x4 Ф700 Ф832 3700
Ф800 1500 109 Ф38x4 Ф900 Ф1055 2350
25 Ф900 1500 139 Ф38x4 Ф1000 Ф1148 2400
30 Ф700 3000 83 Ф38x4 Ф800 Ф947 3800
Ф1000 1500 163 Ф38x4 Ф1100 Ф1260 2500
40 Ф800 3000 109 Ф38x4 Ф900 Ф1055 3850
50 Ф900 3000 139 Ф38x4 Ф1000 Ф1148 3900
60 Ф1000 3000 163 Ф38x4 Ф1100 Ф1260 4000
技术条件 设计压力
设计温度
允许温差 换热系数
壳壁Shell side 0.6MPa 250℃ 100℃ 380~450W/㎡·K
管壁Tube side 0.4MPa 250℃

  在化学、医药工业的生产线中,有冷却、凝结、加热、沸腾等热交换过程。这些都必须根据液体种类、操作条件等情况,选择适宜的设备,使机器构造的质料,符合生产工作的需要。

  新近由无锡市彪王化工设备厂生产的不锈钢列式热交换器具有高耐腐蚀、高热效率、冷却效果好、小巧理想等等优良性能。此热交换器与反应器及其它各种化工设备联合使用,对贵厂的生产发展,定能作出显著贡献。

  搪玻璃列管式冷凝器特点:
  ☆ 高耐蚀性
  ☆ 优良的不粘附性能,极易清洗
  ☆ 容积小,占地少

  与其它搪玻璃热交换器比较,每单位热交换面积,以这种热交换器所占地盘少,这样可使整个生产设备的小巧经济。

给我们留言
姓名:
E-mail:
电话:
公司名称:
主题:
留言内容:
Copyright © 无锡市彪王化工设备厂 版权所有 All rights reserved. 苏ICP备05009472号-1